Wohnpark Nunkirchen – Das Tor zum Hochwald
In zentraler und schöner Lage von Nunkirchen entstehen zwei Wohnhäuser mit jeweils 13 Eigentumswohnungen in hochwertiger Massivbauweise.
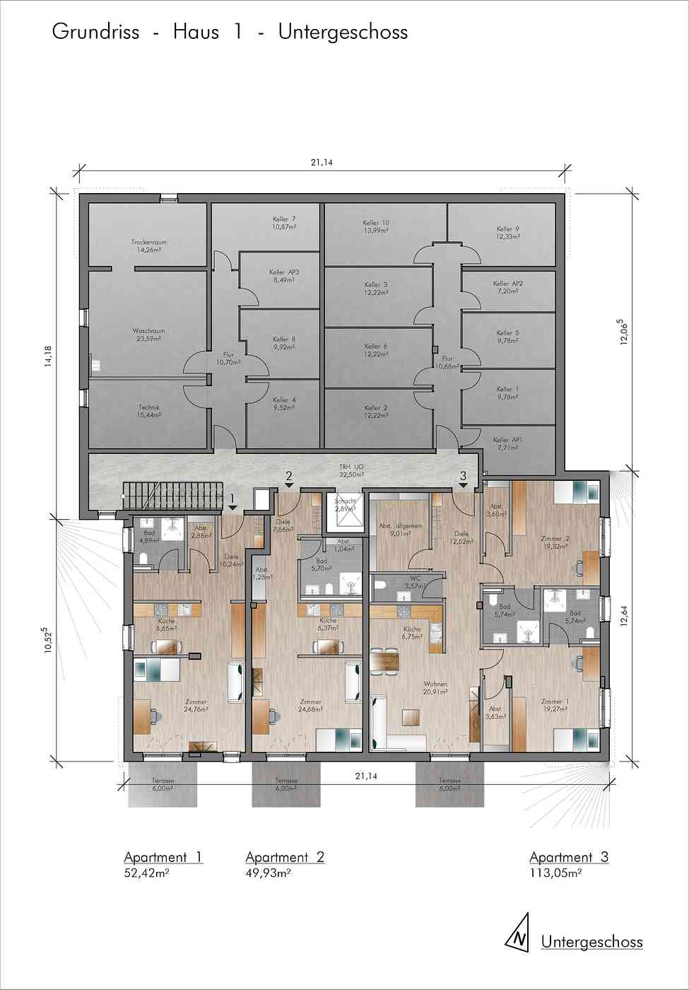
Die Wohnungsgrößen liegen zwischen 50 m² und 130 m², jeweils aufgeteilt in 1 bis 3 Zimmer, Küche , Bad, Gäste-WC, Abstellraum, Balkon oder Terrasse.
Den Wohnungen im Untergeschoss und teilweise auch im Erdgeschoss ist ein Gartenanteil zugeordnet zur alleinigen Nutzung.
Alle Wohnungen sind barrierefrei und können bei Bedarf auch rollstuhlgerecht ausgeführt werden. Über eine moderne Aufzugsanlage erreichen Sie problemlos alle Etagen.
Die hochwertige Ausstattung macht das Wohnen zum wahren Erlebnis.
Kaufpreise von 217.000 € bis 573.000 €
Der Verkauf ist provisionsfrei.
Wir haben Ihr Interesse geweckt? Dann rufen Sie uns für weitere Informationen an:
Info-Line 0681 / 383-2323
Selbstverständlich stehen wir Ihnen auch gerne bei der Finanzierung Ihrer Immobilie zur Seite.
Nutzen Sie den Investitionsanreiz zur Förderung des Wohnungsbaus!!!
Der Gesetzgeber hat die Gebäudeabschreibung auf 5 % für 6 Jahre (vom jeweiligen Restbuchwert) im Rahmen des Wachstumschancengesetzes beschlossen.
- KFW 40 EE Energiestandard
- alle Wohnungen barrierefrei
- 4 Wohnungen rollstuhlgerecht
- 6-Personen-Aufzug
- alle Wohnungen mit Balkon oder Terrasse
- EG-Wohnungen teilweise mit Gartenanteil
- Luft-Wasser-Wärmepumpe
- Fußbodenheizung in allen Wohnräumen
- Fenster mit 3-fach Wärmeschutzverglasung
- Raffstores mit elektrischem Antrieb
- bodengleich geflieste Duschen
- hochwertige Innentüren
- individuell bemusterte Bodenbeläge
- Komplettes Gelände mit Zaun und Toranlage gesichert.
- Kellerraum von ca. 10 m² im Preis enthalten
- Kfz-Stellplatz im Preis enthalten
und vieles mehr ...